1. Home
  2. Search Listings
  3. 871 Ne 35th Street Boca Raton, FL - 33431
  • MLS® #: RX-11064993
  • 871 Ne 35th Street
  • Boca Raton, FL 33431
  • $19,995,000
  • 4 Beds, 6 Bath, 6,794 SqFt
  • Residential

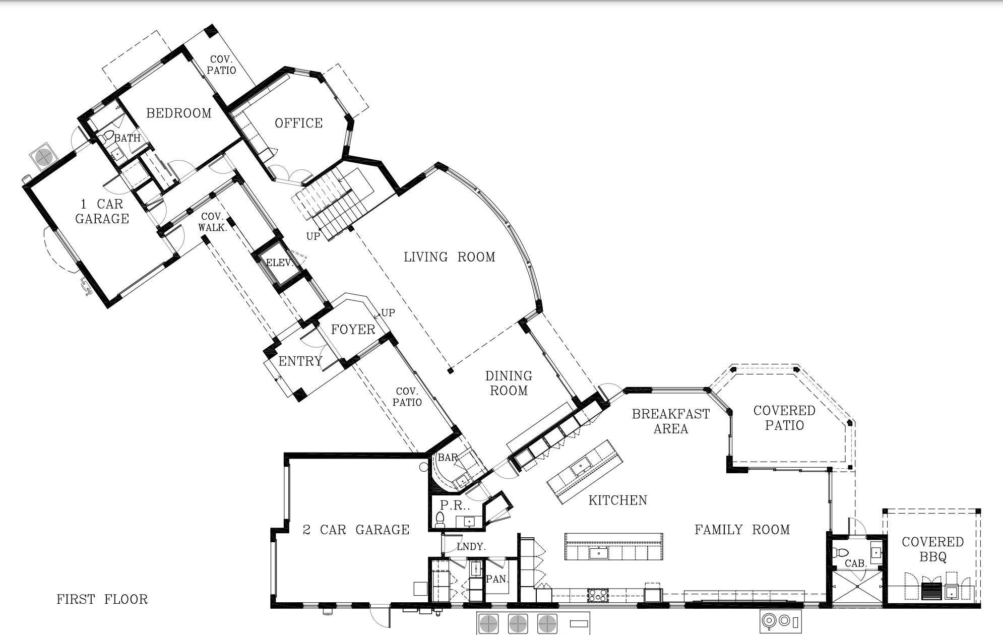
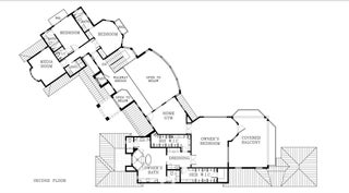
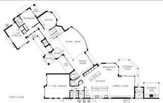
Upon finishing 2 years of complete renovation, East Boca Raton's newest luxury intracoastal estate is just about ready to debut. This home promises to redefine waterfront living with it's unparalleled level of craftsmanship and sophistication. Situated on one of the widest sections of the intracoastal, this breathtaking home is nestled on a most rare, incomparable dream lot boasting 223 feet of prime intracoastal water frontage. This secluded resort-style oasis offers breathtaking panoramic views from nearly every room. Spanning 6800 sq ft of exquisite re-designed living space, (literally, everything is brand new!) this stunning home features 4 spacious en-suite bedrooms,a media room, office space, a bar area, and a gym. The newly customized outdoor living area will be complete with a state-of-the art heated pool and spa, covered patios, cabana bath and a fully equipped summer kitchen. Smart home technology, a new elevator, a 100KW generator and a brand new yacht-ready 200 ft. dock will further fuel this home as the ultimate waterfront residence. Just minutes from the ocean, world-class dining, as well as Boca's own private executive airport, this waterfront beauty will provide coastal living at it finest!

View Virtual Tour

Essential Information

  • MLS® #RX-11064993
  • Price$19,995,000
  • CAD Dollar$27,872,610
  • UK Pound£15,144,513
  • Euro€17,214,015
  • HOA Fees0.00
  • Bedrooms4
  • Bathrooms6.00
  • Full Baths5
  • Half Baths1
  • Square Footage6,794
  • Year Built1992
  • TypeResidential
  • Sub-TypeSingle Family Detached
  • RestrictionsNone
  • StyleContemporary
  • StatusActive
  • HOPANo Hopa

Community Information

  • Address871 Ne 35th Street
  • Area4180
  • SubdivisionLAKE ROGERS ISLE UNIT C
  • CityBoca Raton
  • CountyPalm Beach
  • StateFL
  • Zip Code33431

Amenities

  • AmenitiesNone
  • Utilities3-Phase Electric, Public Water
  • ParkingDriveway, Garage - Attached
  • # of Garages3
  • ViewIntracoastal, Pool, Preserve
  • Is WaterfrontYes
  • Has PoolYes
  • Pets AllowedYes

Waterfront

Intracoastal, No Fixed Bridges, Ocean Access, Seawall, Point Lot

Pool

Heated, Inground, Salt Water, Spa

Interior

  • HeatingCentral
  • CoolingCentral
  • # of Stories2
  • Stories2.00

Interior Features

Bar, Closet Cabinets, Elevator, Entry Lvl Lvng Area, Foyer, Cook Island, Pantry, Upstairs Living Area, Volume Ceiling, Walk-in Closet, Wet Bar

Appliances

Auto Garage Open, Central Vacuum, Cooktop, Dishwasher, Dryer, Freezer, Generator Whle House, Ice Maker, Microwave, Range - Electric, Refrigerator, Smoke Detector, Wall Oven, Washer, Washer/Dryer Hookup, Water Heater - Gas

Exterior

  • ConstructionCBS

Exterior Features

Built-in Grill, Cabana, Covered Balcony, Covered Patio, Custom Lighting, Open Balcony, Open Patio, Summer Kitchen, Zoned Sprinkler

Lot Description

1/4 to 1/2 Acre, Corner Lot, Cul-De-Sac, East of US-1

Roof

Aluminum, Metal, Wood Truss/Raft

  • Office: Compass Florida Llc

Property Location

Please provide a valid email address.

871 Ne 35th Street on www.ww.jupiteroceanfrontcondos.us

Offered at the current list price of $19,995,000, this home for sale at 871 Ne 35th Street features 4 bedrooms and 6 bathrooms. This real estate listing is located in LAKE ROGERS ISLE UNIT C of Boca Raton, FL 33431 and is approximately 6,794 square feet. 871 Ne 35th Street is listed under the MLS ID of RX-11064993 and has been available through www.ww.jupiteroceanfrontcondos.us for the Boca Raton real estate market for 250 days.

Similar Listings to 871 Ne 35th Street

Photo of Listing #RX-11003862
  • MLS® #: RX-11003862
  • 471 Royal Palm Way
  • Boca Raton, FL 33432
  • $17,750,000
  • 5 Bed, 8 Bath, 7,690 SqFt
  • Residential
Add as Favorite
Photo of Listing #RX-11018359
  • MLS® #: RX-11018359
  • 839 Orchid Dr
  • Boca Raton, FL 33432
  • $21,500,000
  • 5 Bed, 10 Bath, 8,563 SqFt
  • Residential
Add as Favorite
Photo of Listing #RX-11037595
  • MLS® #: RX-11037595
  • 1203 Spanish River Road
  • Boca Raton, FL 33432
  • $17,399,000
  • 5 Bed, 10 Bath, 9,653 SqFt
  • Residential
Add as Favorite
Photo of Listing #RX-11041771
  • MLS® #: RX-11041771
  • 224 W Key Palm Road
  • Boca Raton, FL 33432
  • $22,000,000
  • 6 Bed, 9 Bath, 9,582 SqFt
  • Residential
Add as Favorite

All listings featuring the BMLS logo are provided by Beaches MLS Inc. Copyright 2025 Beaches MLS. This information is not verified for authenticity or accuracy and is not guaranteed.
© 2025 Beaches Multiple Listing Service, Inc. All rights reserved.

Listing information last updated on October 30th, 2025 at 3:24pm CDT.