1. Home
  2. Search Listings
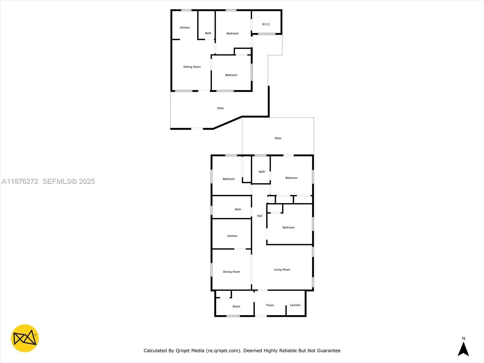
  3. 1601 Nw 50th St Miami, FL - 33142-4162
  • MLS® #: A11876272
  • 1601 Nw 50th St
  • Miami, FL 33142-4162
  • $699,900
  • 2,033 SqFt
  • Income

Exceptional investment opportunity in the heart of Miami! Fully renovated duplex at 1601 NW 50th St featuring two modern units with new kitchens, updated bathrooms, and stylish finishes throughout. Both units are currently rented, generating immediate and stable income. Ideal for local or international investors seeking a turnkey property with strong returns. Located near Wynwood, Midtown, Design District, and Downtown Miami—one of Miami’s fastest-growing and most desirable areas. A perfect addition to any investment portfolio with high rental demand and long-term appreciation potential.

View Virtual Tour

Essential Information

  • MLS® #A11876272
  • Price$699,900
  • CAD Dollar$969,687
  • UK Pound£520,942
  • Euro€600,416
  • Bathrooms0.00
  • Square Footage2,033
  • Year Built1924
  • TypeIncome
  • Sub-TypeDuplex
  • StatusActive

Community Information

  • Address1601 Nw 50th St
  • Area31
  • SubdivisionFAIRHAVEN GARDENS
  • CityMiami
  • CountyMiami-Dade
  • StateFL
  • Zip Code33142-4162

Amenities

  • UtilitiesCable Available

Interior

  • InteriorVinyl
  • HeatingCentral, Electric
  • CoolingCentral Air, Electric
  • # of Stories2
  • StoriesTwo

Exterior

  • Exterior FeaturesLighting, Shed
  • WindowsOther
  • RoofOther, Shingle
  • ConstructionBlock
  • Office: Related Isg Realty, Llc.

Property Location

Please provide a valid email address.

1601 Nw 50th St on www.ww.jupiteroceanfrontcondos.us

Offered at the current list price of $699,900, this home for sale at 1601 Nw 50th St features 0 bedrooms and 0 bathrooms. This real estate listing is located in FAIRHAVEN GARDENS of Miami, FL 33142-4162 and is approximately 2,033 square feet. 1601 Nw 50th St is listed under the MLS ID of A11876272 and has been on the Miami real estate market for 105 days.

Facts About Miami, FL

Each winter during Carnaval Miami, salsa tunes blare and the smell of spicy chorizo fills the air on Calle Ocho, the commercial thoroughfare and heart of Miami's Little Havana. The roaring street festival, which culminates in the world's longest conga line, is the last of 10 events comprising the Latin-spiked Carnaval.

Similar Listings to 1601 Nw 50th St

Photo of Listing #A11650144
  • MLS® #: A11650144
  • 7710 Ne 1st Ct
  • Miami, FL 33138-4801
  • $750,000
  • 1,248 SqFt
  • Income
Add as Favorite
Photo of Listing #A11611294
  • MLS® #: A11611294
  • 22 Ne 59th St
  • Miami, FL 33137-2004
  • $799,000
  • 2,669 SqFt
  • Income
Add as Favorite
Photo of Listing #A11696469
  • MLS® #: A11696469
  • 2729-2731 Nw 44 Street
  • Miami, FL 33142-0000
  • $790,000
  • 2,358 SqFt
  • Income
Add as Favorite
Photo of Listing #A11704349
  • MLS® #: A11704349
  • 1838 Nw 18th St
  • Miami, FL 33125-1408
  • $715,000
  • 1,904 SqFt
  • Income
Add as Favorite

The data relating to real estate on this web site comes in part from the Internet Data Exchange program of the MLS of the REALTOR® Association of Greater Miami and the Beaches, and is updated as of January 20th, 2026 at 3:45am CST (date/time).

All information is deemed reliable but not guaranteed by the MLS and should be independently verified. All properties are subject to prior sale, change, or withdrawal. Neither listing broker(s) nor Waterfront Properties and Club Communities shall be responsible for any typographical errors, misinformation, or misprints, and shall be held totally harmless from any damages arising from reliance upon these data. © 2026 MLS of RAMB.

The information being provided is for consumers' personal, non-commercial use and may not be used for any purpose other than to identify prospective properties consumers may be interested in purchasing