1. Home
  2. Search Listings
  3. 1259 Ne 97th St Miami Shores, FL - 33138-2559
  • MLS® #: A11784047
  • 1259 Ne 97th St
  • Miami Shores, FL 33138-2559
  • $2,100,000
  • 5 Beds, 5 Bath, 2,403 SqFt
  • Residential

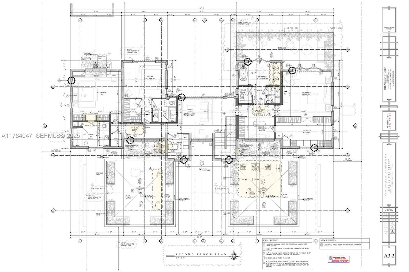
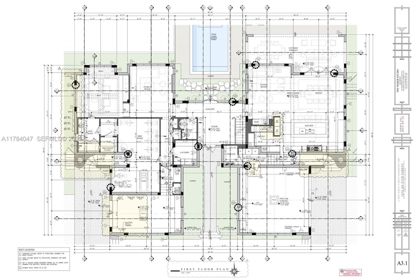
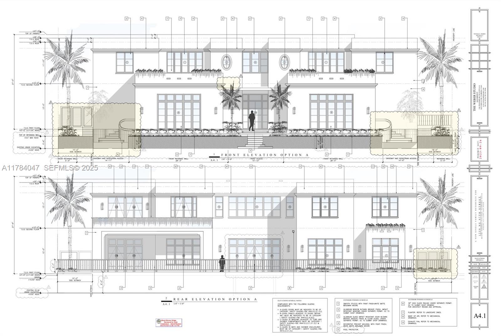
Welcome to Nobel House — a fully approved DOUBLE LOT DEVELOPMENT OPPORTUNITY WITH PLANS & ACTIVE BUILDING PERMITS. SHOVEL-READY — START CONSTRUCTION IMMEDIATELY. Save two years of design, planning & permitting. ***Priced below the total costs to acquire, design, permit, and prepare the property to its current build-ready condition*** Located on a 12,300 SF double lot east of Biscayne, just three lots from the open bay. Fully approved plans deliver a 5,650 SF residence — among the LAST SET OF PLANS APPROVED UNDER PREVIOUS ZONING RULES ALLOWING NEARLY 1K MORE BUILDABLE AREA THAN WOULD BE PERMITTED TODAY UNDER CURRENT ZOMING RESTRICTIONS. Sale includes all approved architectural, engineering, and interior design plans. Site cleared, rough graded, and ready to build — bring you GC, temporary power and start construction. ***VIRTUAL VIDEO TOUR TO EXPERIENCE***

View Virtual Tour

Essential Information

  • MLS® #A11784047
  • Price$2,100,000
  • CAD Dollar$2,910,758
  • UK Pound£1,559,796
  • Euro€1,797,949
  • Bedrooms5
  • Bathrooms5.00
  • Full Baths4
  • Half Baths1
  • Square Footage2,403
  • Year Built2025
  • TypeResidential
  • Sub-TypeSingle Family Residence
  • StyleDetached, Two Story
  • StatusActive

Community Information

  • Address1259 Ne 97th St
  • Area32
  • SubdivisionEARLETON SHORES
  • CityMiami Shores
  • CountyMiami-Dade
  • StateFL
  • Zip Code33138-2559

Amenities

  • # of Garages3
  • ViewBay, Pool

Features

Pool, Golf, Golf Course Community, Pickleball, Tennis Court(s)

Parking

Attached, Driveway, Garage, On Street

Interior

  • InteriorHardwood, Tile, Wood
  • AppliancesGas Range
  • HeatingCentral
  • # of Stories2
  • StoriesTwo

Cooling

Central Air, Ceiling Fan(s), Zoned

Exterior

  • RoofConcrete
  • ConstructionBlock

Exterior Features

Security/High Impact Doors, Patio

  • Office: London Foster Realty

Property Location

Please provide a valid email address.

1259 Ne 97th St on www.ww.jupiteroceanfrontcondos.us

Offered at the current list price of $2,100,000, this home for sale at 1259 Ne 97th St features 5 bedrooms and 5 bathrooms. This real estate listing is located in EARLETON SHORES of Miami Shores, FL 33138-2559 and is approximately 2,403 square feet. 1259 Ne 97th St is listed under the MLS ID of A11784047 and has been on the Miami Shores real estate market for 237 days.

Similar Listings to 1259 Ne 97th St

Photo of Listing #A11742170
  • MLS® #: A11742170
  • 29 Ne 95th St
  • Miami Shores, FL 33138-2706
  • $1,999,999
  • 4 Bed, 4 Bath, 2,922 SqFt
  • Residential
Add as Favorite
Photo of Listing #A11762211
  • MLS® #: A11762211
  • 485 Ne 96th St
  • Miami Shores, FL 33138-2733
  • $1,999,999
  • 4 Bed, 3 Bath, 2,866 SqFt
  • Residential
Add as Favorite
Photo of Listing #A11882025
  • MLS® #: A11882025
  • 9357 Ne 9th Pl
  • Miami Shores, FL 33138-2973
  • $1,860,000
  • 3 Bed, 3 Bath, 1,783 SqFt
  • Residential
Add as Favorite
Photo of Listing #A11804415
  • MLS® #: A11804415
  • 9341 Ne 9th Ave
  • Miami Shores, FL 33138-2903
  • $1,795,000
  • 4 Bed, 3 Bath, 2,292 SqFt
  • Residential
Add as Favorite

The data relating to real estate on this web site comes in part from the Internet Data Exchange program of the MLS of the REALTOR® Association of Greater Miami and the Beaches, and is updated as of January 8th, 2026 at 4:30am CST (date/time).

All information is deemed reliable but not guaranteed by the MLS and should be independently verified. All properties are subject to prior sale, change, or withdrawal. Neither listing broker(s) nor Waterfront Properties and Club Communities shall be responsible for any typographical errors, misinformation, or misprints, and shall be held totally harmless from any damages arising from reliance upon these data. © 2026 MLS of RAMB.

The information being provided is for consumers' personal, non-commercial use and may not be used for any purpose other than to identify prospective properties consumers may be interested in purchasing